Detalle
-
Clave CRM:
EB-QN2946
Descripción
UBICACION
Vía Gustavo Baz, Niños Heroes, 54015 Tlalnepantla, Méx.
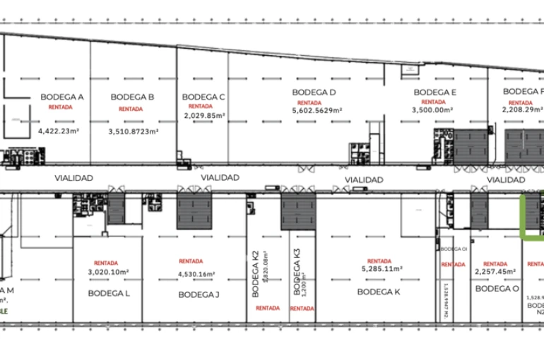
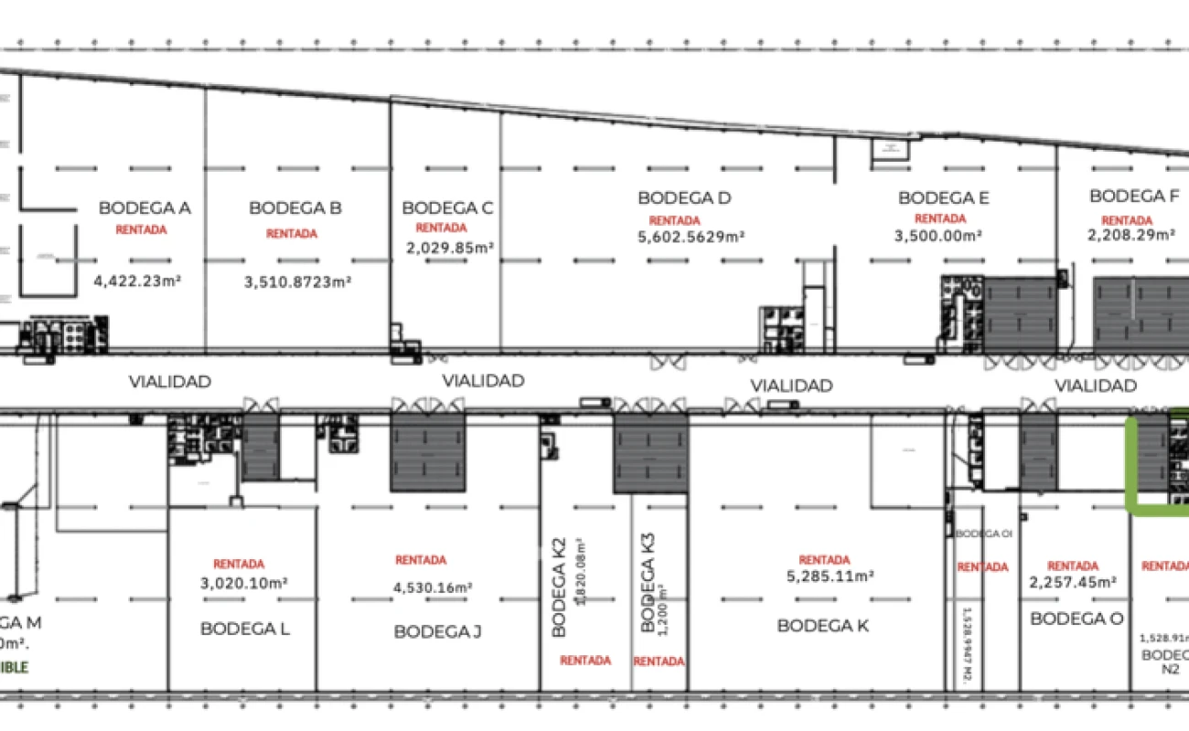
Bodega N1
SUPERFICIE 2,640.00m2
Características
- Altura mínima de 5.30m y máxima de 6.60m.
- Espacio entre columnas de 10m2.
- Oficinas
- Baños.
- Estacionamiento
- Instalaciones eléctricas.
- Limpieza en áreas comunes.
- Seguridad las 24hrs.
- Pasillo para trailer
- 2 andenes de descarga
Especificaciones:
- Resistencia de pisos: 2 F'c=250kg/cm
- Espesor de pisos: 20 cm.
- Espacio entre columnas: 10 m.
- Patio de maniobras: 6300m2
- Material de muros: Block
- Material de techos:Lámina zintro.
- Iluminación natural al 8%.
- Iluminación artificial:
Vapor de sodio.
- Corriente trifásica.
- Sistema contra incendio: Diesel x2UL Listed NFPA Approved.
