Detalle
-
Superficie construida:
18,190.00 m² -
Superficie de terreno:
18,190.00 m² -
Clave CRM:
EB-SL8524
Descripción
CARACTERÍSTICAS DEL INMUEBLE:
Esta propiedad se comercializa bajo el esquema BTS (Built to Suit), una vez firmado el contrato, se construye. Puede ser ajustado según el requerimiento del cliente. El plazo de adecuación esta por definirse. (Generalmente al rededor de 8 a 10 meses en naves grandes) Se pueden hacer entregas parciales de los espacios para flexibilizar y atender las necesidades de los clientes.
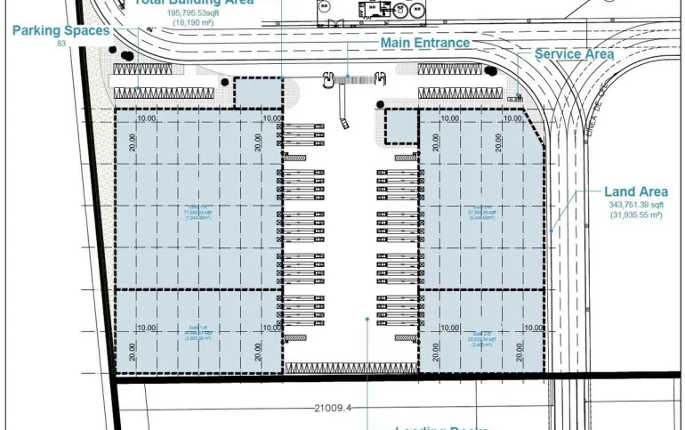
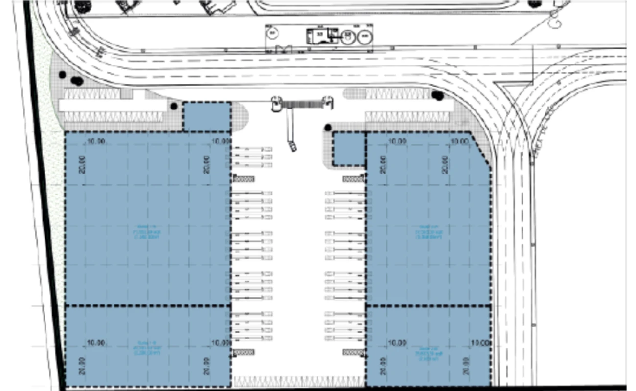
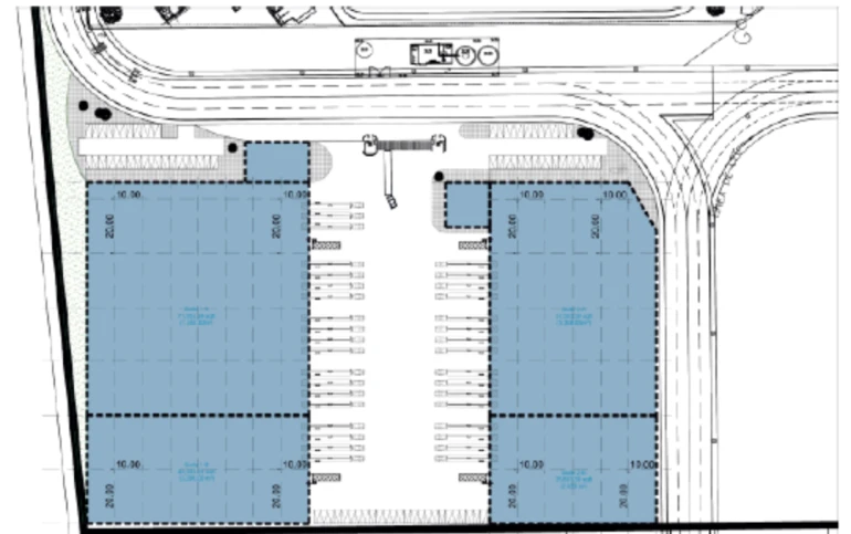
•En parque industrial
•Altura: 12 mts.
•Andenes: 35
•Estacionamiento: 83
•Accesos: 1
•Cercano al Aeropuerto internacional
Área rentable:
•Suite 1A: 7,242 m²
•Suite 1B: 3,200 m²
•Suite 2A: 5,348 m²
•Suite 2B: 2,400 m²
•Total: 18,190 m²
Renta: MXN $135 /m2
Los precios publicados, disponibilidad del inmueble u otras condiciones podrán ser sujetos a cambio sin previo aviso. Toda la información y medidas provistas son aproximadas y se proporcionan con fines informativos, por lo que deberán ser confirmados en la documentación pertinente. La información corresponde a los últimos datos recabados y deberá confirmarse. Fotografías no vinculantes ni contractuales.
ZY-EB-SL8524
