Detalle
-
Superficie construida:
8,226.00 m² -
Superficie de terreno:
8,226.00 m² -
Clave CRM:
EB-OF8489
Descripción
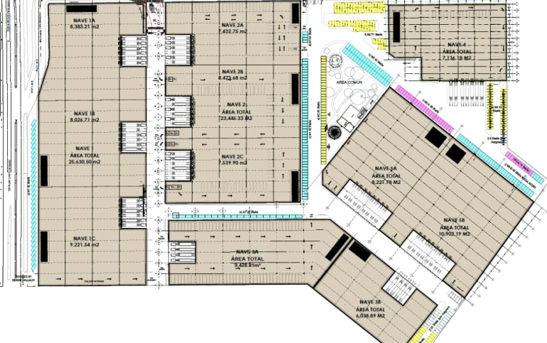
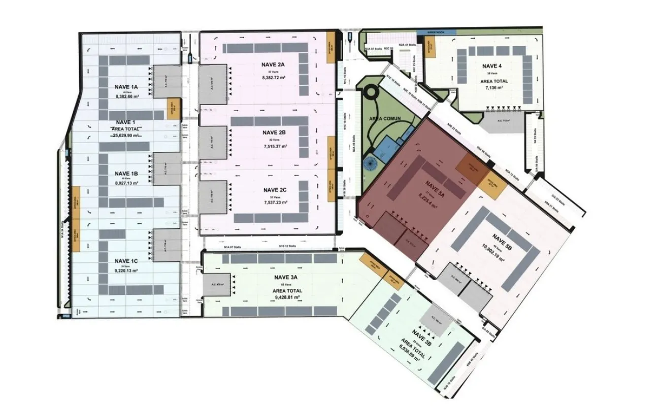
CARACTERISTICAS DEL INMUEBLE:
Nave a rentar:
•Nave 5A: 8,226 m²
Renta: $12.50 USD / m²
Mantenimiento: $1.25 USD / m²
•Altura : 6 m
•Puertas de carga: 8
•Estacionamiento: Vehículos: 28 / Vans: 41
•Piso: Acabado endurecedor Ashford, capacidad mínima 3tons/m2
•Electricidad: Transformador independiente por edificio de 225 KVA's, infraestructura eléctrica y alumbrado de emergencia.
•Protección contra incendios Lucha contra incendios centralizada. Sistema: red (hidrantes y mangueras), norma aprobada por NFPA.
•Servicio de Agua: Sistema Hidráulico: Dos cisternas
•Seguridad: Parque seguro con acceso restringido, cerco perimetral y caseta de vigilancia.
•Infraestructura: Instalaciones sanitarias, eléctricas e hidráulicas para cada inquilino.
Nota: Los precios publicados, disponibilidad del inmueble u otras condiciones podrán ser sujetos a cambio sin previo aviso. Toda la información y medidas provistas son aproximadas y se proporcionan con fines informativos, por lo que deberán ser confirmados en la documentación pertinente. La información corresponde a los últimos datos recabados y deberá confirmarse. Fotografías no vinculantes ni contractuales.
ODEB-QM3389
