Detalle
-
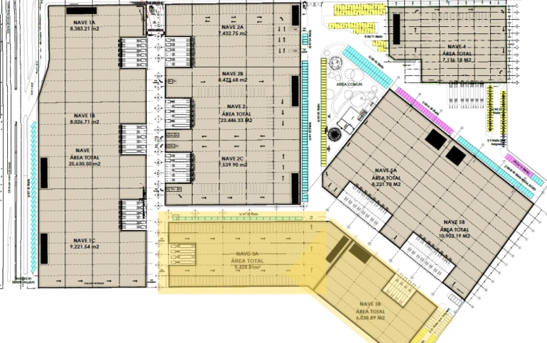
Superficie construida:
9,428.00 m² -
Superficie de terreno:
9,428.00 m² -
Clave CRM:
EB-OH5944 -
Estacionamiento:
1.00
Descripción
CARACTERISTICAS DEL INMUEBLE:
Excelentes Naves Industriales en Vallejo, los cuales tienen las siguientes descripciones
Superficie Total:
•Nave 3A: 9,428 m²
Renta: $11.75 USD / m²
Mantenimiento: $1.08 USD/ m²
•Estacionamiento: Vehículos: 108 / Vans: 57
•Altura : 5.5 m
•Acceso vehicular: Patio interior y Patio exterior para furgonetas
•Piso: Acabado endurecedor Ashford, capacidad mínima 3tons/m2
•Puertas de Cargas: 4
•Electricidad: Transformador independiente por edificio de 225 KVA's, infraestructura eléctrica y alumbrado de emergencia.
•Protección contra incendios Lucha contra incendios centralizada. Sistema: red (hidrantes y mangueras), norma aprobada por NFPA.
•Servicio de Agua: Sistema Hidráulico: Dos cisternas
•Seguridad: Parque seguro con acceso restringido, cerco perimetral y caseta de vigilancia.
•Infraestructura: Instalaciones sanitarias, eléctricas e hidráulicas para cada inquilino.
•Entrega Estimada: Se prevé que el proyecto esté disponible para Octubre del 2024, sujeto a posibles ajustes en el cronograma de construcción.
Nota: Los precios publicados, disponibilidad del inmueble u otras condiciones podrán ser sujetos a cambio sin previo aviso. Toda la información y medidas provistas son aproximadas y se proporcionan con fines informativos, por lo que deberán ser confirmados en la documentación pertinente. La información corresponde a los últimos datos recabados y deberá confirmarse. Fotografías no vinculantes ni contractuales.
Nos permitimos informarle que, de acuerdo con nuestras políticas financieras, todos los contratos formalizados con nuestros clientes y socios comerciales se establecen en dólares estadounidenses (USD).
EB-OH5944
OD
