Detalle
-
Superficie construida:
8,681.00 m² -
Superficie de terreno:
8,681.00 m² -
Clave CRM:
EB-TH8220
Descripción
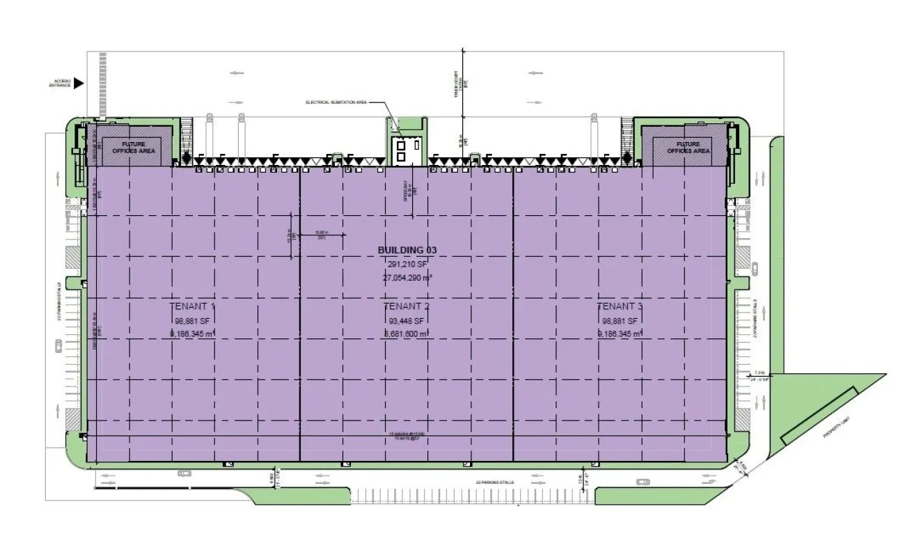
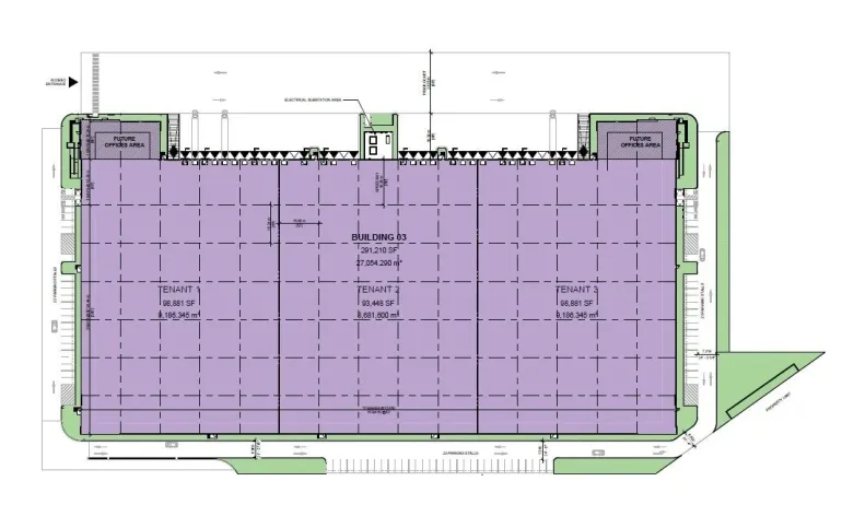
Nave Industrial de 8,681 m² | Parque Industrial | Lerma, Edo. de México
Ubicada dentro de un complejo industrial cerrado en una de las zonas industriales más consolidadas.
Características generales:
• Superficie disponible: 8,681 m²
• Altura libre mínima: 9.75 m
• Muros: Concreto tipo Tilt-Up
• Oficinas: 3% del área total
• Iluminación natural: 3.5% de tragaluces
• Andenes: 8 puertas de carga y descarga equipadas
• Energía eléctrica: 500 KVAs incluidos
• Entrega inmediata
• Renta: 9.10 USD/M2
• Mantenimiento: 1.27 USD/M2
Ventajas competitivas:
• Complejo cerrado con control de acceso, compuesto por 5 edificios industriales.
• Mano de obra disponible en la zona.
• Excelente conectividad logística y ubicación estratégica.
Ideal para empresas que buscan una nave moderna con alta funcionalidad operativa.
Contáctanos para más información o agendar una visita.
Nota: Los precios publicados, disponibilidad del inmueble u otras condiciones podrán ser sujetos a cambio sin previo aviso. Toda la información y medidas provistas son aproximadas y se proporcionan con fines informativos, por lo que deberán ser confirmados en la documentación pertinente. La información corresponde a los últimos datos recabados y deberá confirmarse. Fotografías no vinculantes ni contractuales.
PLEB-TH8220
