Detalle
-
Superficie construida:
7,568.00 m² -
Superficie de terreno:
7,568.00 m² -
Clave CRM:
EB-OE9829 -
Estacionamiento:
47.00
Descripción
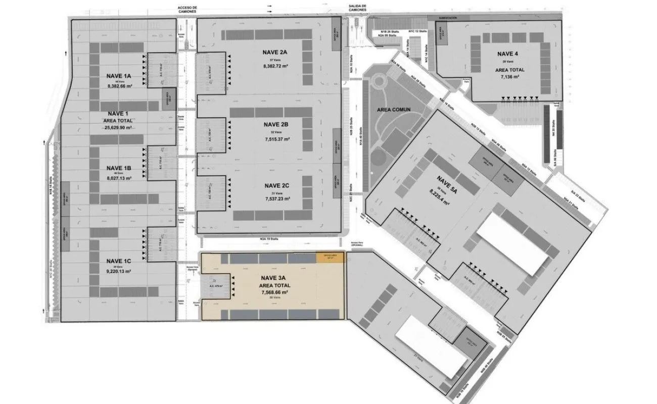
Bodega Industrial en Renta – 7,568 m² | Parque Industrial con Certificación EDGE
Esta nave industrial de 7,568 m² ofrece un espacio diseñado para eficiencia operativa, seguridad y sostenibilidad, dentro de un parque con acceso controlado y certificación EDGE. Su infraestructura garantiza funcionalidad para empresas que requieren operaciones logísticas, almacenamiento y procesos de manufactura ligera.
Características principales:
• Nave (3A) disponible: 7,568 m²
• Altura libre: 5.5 m (16.4 pies)
• Espacio entre columnas: 25 x 10 m
• Puertas de carga: 4
• Estacionamientos: Administrativos: 1 por cada 161 m² (47 cajones). Vans: 1 por cada 130 m² (58 espacios al interior de la nave)
• Piso: Acabado Ashford, capacidad mínima de 3 ton/m²
• Techo: Lámina R-101
• Infraestructura y servicios:
• Potencia: Transformador de 225 KVA, subestación eléctrica
• Instalaciones: Sanitarias, hidráulicas y eléctricas independientes para cada inquilino
• Iluminación interior: 250 luxes
• Seguridad: Parque con acceso restringido, barda perimetral y caseta de vigilancia
• Sistema contra incendios: Red centralizada con hidrantes y mangueras, bajo NOM-002-STPS (MX)
• Agua: Sistema hidráulico con dos cisternas (capacidad total de 600 m³)
Renta: $12.50 USD / m²
Mantenimiento: $1.25 USD / m²
Nota: Los precios publicados, disponibilidad del inmueble u otras condiciones podrán ser sujetos a cambio sin previo aviso. Toda la información y medidas provistas son aproximadas y se proporcionan con fines informativos, por lo que deberán ser confirmados en la documentación pertinente. La información corresponde a los últimos datos recabados y deberá confirmarse. Fotografías no vinculantes ni contractuales.
