Detalle
-
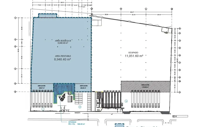
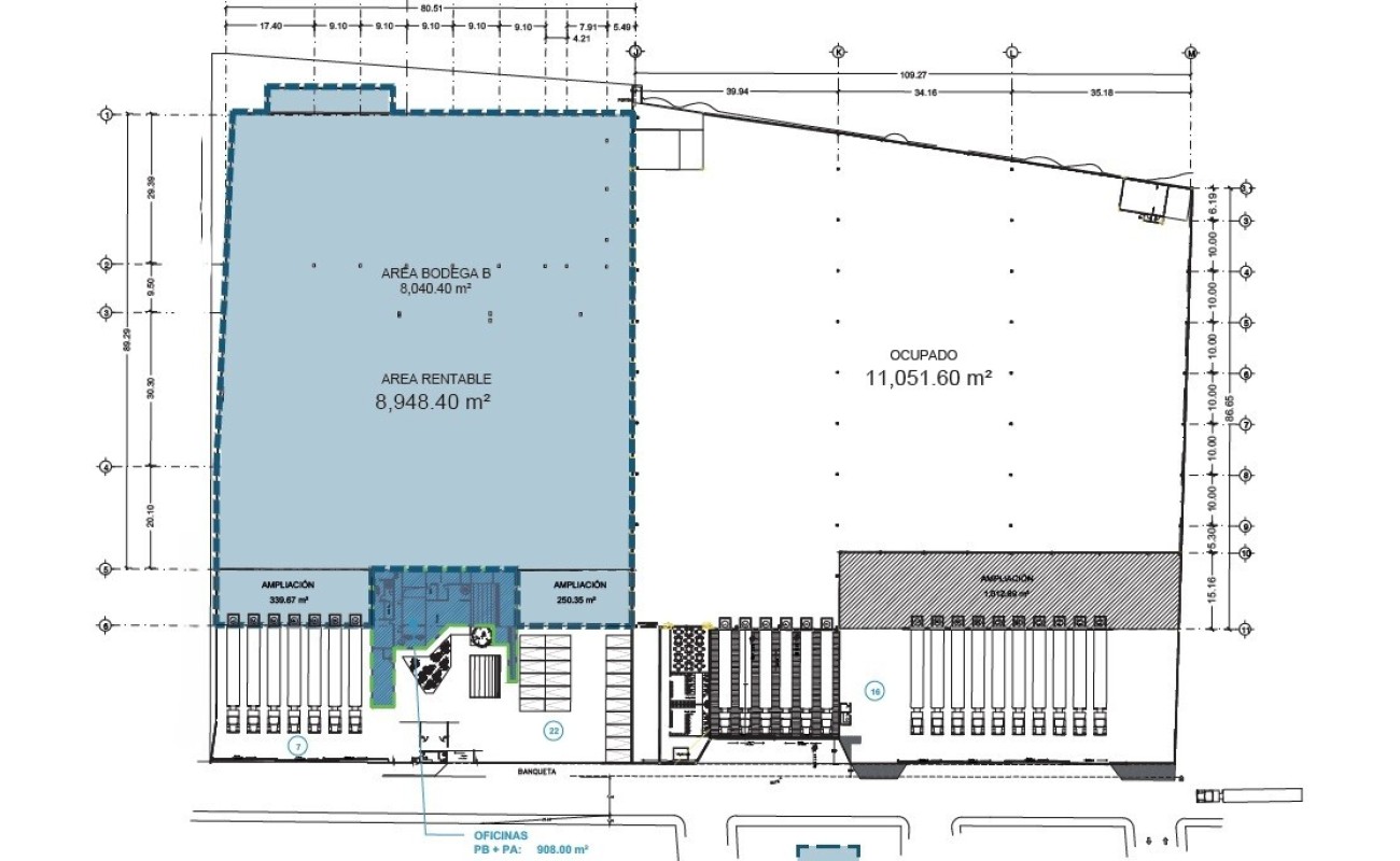
Superficie construida:
8,948.00 m² -
Superficie de terreno:
8,948.00 m² -
Clave CRM:
EB-UH6943
Descripción
EN RENTA – NAVE INDUSTRIAL EN CUAUTITLÁN, CDMX
Ubicadas estratégicamente en Cuautitlán, diseñadas para satisfacer operaciones de alto rendimiento.
• Precio de renta: $170 MXN/m²
Características principales:
• Bodega B: 8,040 m²
• Oficinas en Bodega B: 908 m² (Planta baja + Primer piso)
• Superficie total: 8,948 m²
• Altura libre: De 8.00 a 12.00 m
• Andenes de carga: 7 andenes
• Energía: Capacidad eléctrica de 3.4 MW
• Cisterna principal: 150 m³
• Cisternas secundarias: 3x40 m³
• Red contra incendios: Con hidrantes para mayor seguridad
• Techos: Lámina KR-18, resistentes y duraderos
• Resistencia del piso: 8 toneladas/m²
Esta propiedad cuenta con infraestructura avanzada, excelente distribución y una ubicación privilegiada.
Nota: Los precios publicados, disponibilidad del inmueble u otras condiciones podrán ser sujetos a cambio sin previo aviso. Toda la información y medidas provistas son aproximadas y se proporcionan con fines informativos, por lo que deberán ser confirmados en la documentación pertinente. La información corresponde a los últimos datos recabados y deberá confirmarse. Fotografías no vinculantes ni contractuales.ZYEB-SL5829
