Invisible

Oficina en Lomas de Chapultepec

Andes 265 1 Lomas de Chapultepec I Sección, Miguel Hidalgo, Ciudad de México

Publicado: 27-09-2025

Renta: US$19,530
Mantenimiento: $46,480
Renta

Detalle

  • Superficie construida:

    542.00 m²
  • Superficie de terreno:

    559.00 m²
  • Clave CRM:

    EB-RZ0368
  • Estacionamiento:

    18.00

Descripción

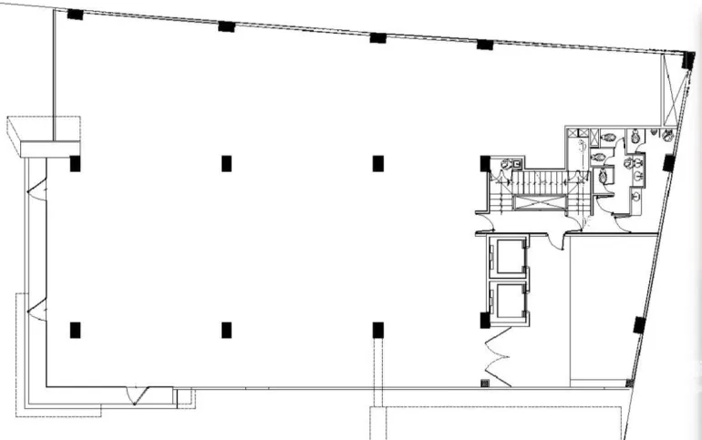
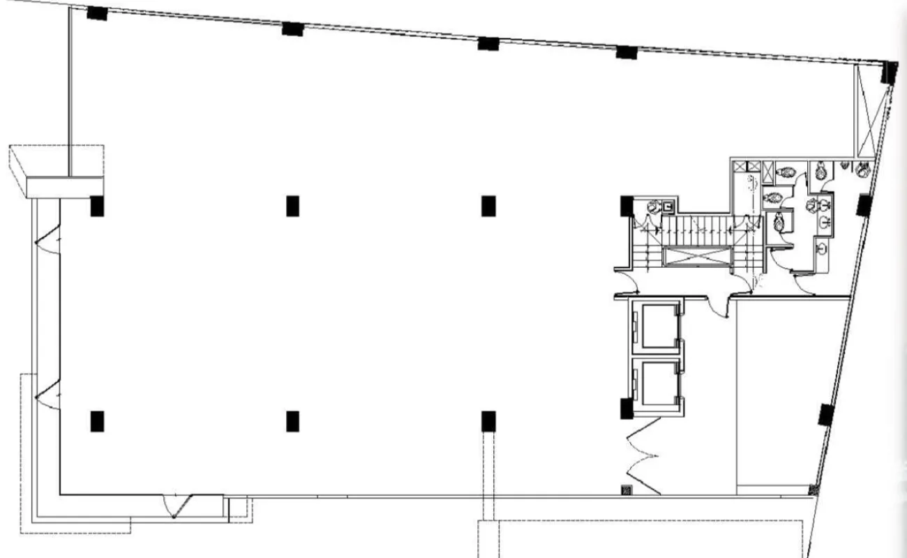
Corporativo en Cordillera de los Andes 265, distribuido en 3 niveles, con múltiples terrazas, Roof Garden privado y 126 cajones de estacionamiento. Situado a una calle de distancia con Av Palmas y dos del Periférico.
A un puente de distancia de Montes Urales y Prado Sur.
Los espacios son altamente eficientes, la oficina cuenta con 542m2 en una sola planta y adicionalmente 17m2 de Terraza, le corresponden 18 lugares de estacionamiento, la oficina se encuentra semi acondicionada.
El mantenimiento equivale al 14% del valor de la renta.
La renta se fija en dólares y de presenta un equivalente del valor en pesos, el cual tendrá que actualizarse al momento de concretar la operación.


Encuentra el sitio que amarás para quedarte