Detalle
-
Recámaras:
3.00 -
Medios baños:
1.00 -
Baños:
3.00 -
Clave CRM:
EB-RZ0263 -
Estacionamiento:
2.00
Descripción
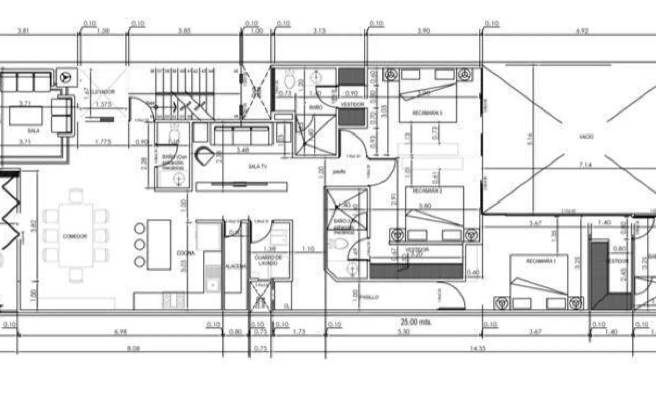
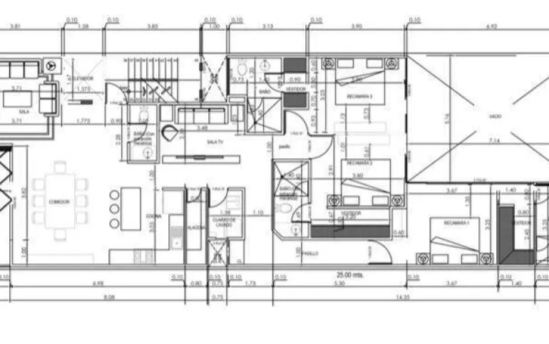
E0258 Estrena hermoso departamento de 170.81m2 Cuenta con tres recámaras, cada una con baño, más un baño de visitas. La estancia es muy amplia con excelente iluminación. Tiene acceso directo desde el elevador y una terraza donde cabe una sala exterior o comedor para 8 personas.
Tiene altura de 3.20m. Cuenta con área de lavado y sala e tv
El departamento ofrece la ventaja de poder personalizarse con cubiertas de cocina, estanterías, piso de madera, carpintería y acabados. Cuenta con dos espacios para estacionamiento.
Se entrega 2 meses después de la firma de contrato para hacer la personalización a tu gusto.
Precio $10,246,666el cual puede cambiar sin previo aviso dependiendo del avance de la obra.